Sprzedam mieszkanie 65m2
Nidzica Pokaż na mapie ›
Dodane: Niedziela, 23 Listopad, 2025 14:27
350 000 zł
5385 zł/m2
Szczegóły ogłoszenia
- Kategoria: Mieszkania / Sprzedaż
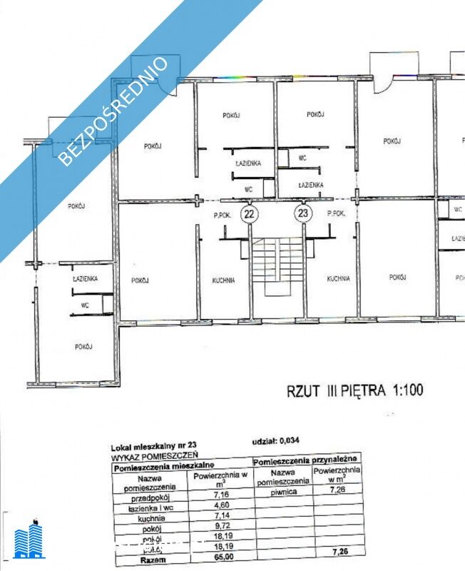
- Powierzchnia:65 m2
- Liczba pokoi:3 pokoje
- Zabudowa:Blok
- Piętro :3 piętro
- Liczba pięter:4 piętra
- Rynek:Wtórny
- Rok budowy:1983
- Sprzedaż:Bez pośredników
- Cena: 350 000 zł / 5385 zł/m2
Opis oferty
Sprzedam przestronne własnościowe mieszkanie 3-pokojowe przy ul. M. Konopnickiej w Nidzicy. Powierzchnia 65 mkw., trzecie piętro (bez windy). Budynek powstał w 1983 roku i znajduje się w zasobach Spółdzielni Mieszkaniowej „Odbudowa”. Mieszkanie składa się z dwóch dużych pokoji (18,19mkw), sypialni (9,72 mkw.), kuchni (7,14 mkw), łazienki i wc (4,6 mkw.) i przedpokoju ( 7,16 mkw.) wejście do każdego z tych pomieszczeń z przedpokoju. Do lokalu należą też balkon (około 1,2 mkw.), piwnica (7,6 mkw.). Wyposażenie pokoi, sypialni oraz kuchni czekają na umeblowanie według własnej aranżacji ( mieszkanie po remoncie).Cena mieszkania do negocjacji.Mieszkanie w świetnej lokalizacji, bardzo dobrze skomunikowane. Stacja PKP i PKS odległości 10-15 minut na ul. Kolejowej, a także liczne sklepy na ul. Grunwaldzkiej .
Lokal świetny pod inwestycję, gotowy do najmu.
Kupujący wybiera notariusza.
Świadectwo charakterystyki energetycznej: SCHE/30221/117/2025
Księga wieczysta (numer): OL1N/00019937/5
Pośrednikom dziękujemy nie jesteśmy zainteresowani współpracą.
Kontakt ze sprzedającym p. Andrzej - proszę dzwonić od pon. - pt. w godzinach 10:00 do 18:00. nr tel.: 536 - pokaż numer telefonu -
Preferowane oglądanie mieszkania w weekendy.
Ogłoszenie dodane do wielu portali nieruchomości przez portal www.odwlasciciela.pl
Sprawdź zainteresowanie tym ogłoszeniem
Wyświetlenia
Data dodania
Ostatnio widziany
Obserwujących
Wysłane zapytania
Odsłony telefonu
Powiadom o podobnych ogłoszeniach
Lokalizacja: Nidzica
Kategoria: Nieruchomości » Mieszkania » Sprzedaż
Cena: od 297500 zł do 402500 zł Powierzchnia : od 55 m2 do 75 m2
Chcę otrzymywać powiadomienia o nowych ofertach
- Wypromuj ogłoszenie
- Zgłoś naruszenie
- Drukuj ulotkę
- Edytuj/usuń ogłoszenie
- Udostępnij ogłoszenie
- Dodaj na Facebook
































